Opis nieruchomości
To jest To, Biuro Nieruchomości Maja Porowska w Hrubieszowie oferuje na sprzedaż:
czteropokojowe mieszkanie na III piętrze w Śródmieściu Hrubieszowa, ul. Narutowicza
w cenie 239 000 zł + garaż murowany z kanałem, przy ulicy Prusa w cenie 49 000 zł.
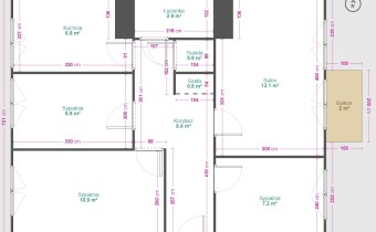
Powierzchnia użytkowa mieszkania: 57,65 m2, przynależna piwnica o powierzchni 2,16m2
Status prawny: odrębna własność z Księgą Wieczystą, jeden właściciel, brak obciążeń.
Dla mieszkańców bloku przynależy parking ze szlabanem, jest więc możliwość swobodnego parkowania mimo położenia bloku w centrum miasta.
Mieszkanie dwustronne, rozkładowe. Stan mieszkania: do remontu. Czynsz 625 zł.
Wysokość pomieszczeń: 2,50 m2.
Orientacja okien (pcv) na wschód i zachód.
Uwaga: istnieje również możliwość zakupu garażu murowanego o powierzchni 20m2, z kanałem naprawczym, znajdującego się przy sąsiedniej ulicy Prusa. Garaż ma przyłącze do prądu. Cena 49 000zł (do negocjacji).
Opis pomieszczeń mieszkania:
- korytarz powierzchnia około 8,40 m2, zabudowany jest obszerną szafą wnękową, na podłodze parkiet drewniany, podobnie na podłogach w pokojach leży dość dobrze zachowana drewniana klepka.
- sypialnia najmniejsza ma powierzchnię ok. 6,80 m2, okna usytuowane są na zachód, parkiet na podłodze
- sypialnia średnia ma powierzchnię ok. 7,20m2, okna na wschód, również parkiet na podłodze
- sypialnia największa ma powierzchnię ok. 10,90 m2, okna na zachód, parkiet na podłodze, okna na wschód, parkiet na podłodze, ok. 13,10 m2ma powierzchnię salon
- z salonu wyjście na balkon o powierzchni ok. 2m2
- kuchnia ma powierzchnię ok. 6,80m2, w kształcie prostokąta. Okno na stronę zachodnią
- łazienka ma powierzchnię ok. 2.9m2, obecnie znajduje się w niej wanna, umywalka
- wc ma powierzchnię ok. 0,90m2
Mieszkanie położone jest w Śródmieściu Hrubieszowa, nieopodal: przedszkole miejskie, park miejski, LO im. St. Staszica, sklepy spożywcze, Biblioteka, Kino Plon i kawiarenka w Hrubieszowskim Domu Kultury, Kościół i Urzędy.
Zapraszam do zapoznania się z ofertą.
Nasze Biuro Nieruchomości To jest To! nie pobiera prowizji od Klienta Kupującego.
Pomagamy w procesie zakupu, współpracujemy z doradcami bankowymi posiadającymi oferty około 30 banków.
Kontakt w sprawie oferty: To jest To, Biuro Nieruchomości Maja Porowska, tel. 606 261 421
Nota prawna
Opis oferty zawarty na stronie internetowej sporządzany jest na podstawie oględzin nieruchomości oraz informacji uzyskanych od właściciela, może podlegać aktualizacji i nie stanowi oferty określonej w art. 66 i następnych K.C.Szczegóły



