Opis nieruchomości
To jest To, Biuro Nieruchomości Maja Porowska oferuje na sprzedaż:kompaktowe, przyjemne mieszkanie o powierzchni 40m2 na drugim piętrze bloku
wraz z przynależną piwnicą o powierzchni 6m2
znajdujące się w Nieledwi, gmina Trzeszczany, powiat Hrubieszów, woj. lubelskie.
Odległość od Hrubieszowa, miasta powiatowego ok. 10 km.
Status prawny: mieszkanie stanowiące odrębną własność, dwóch właścicieli,
Księga Wieczysta bez obciążeń. Czynsz 400 zł. Blok po termomodernizacji.
Opis mieszkania
- stan: do odświeżenia
- ekspozycja okien: południe
- okna: pcv
- ściany: gładź lub ozdobna struktura
- sufity: podwieszane z oświetleniem punktowym
- podłogi: w korytarzu i kuchni gres, w pokojach panele
- łazienka: glazura i terakota
- mieszkanie nie posiada balkonu
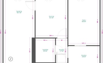
- korytarzyk wejściowy: powierzchnia około 1,70m2
- łazienka powierzchnia około 2,90m2, obecnie w łazience znajduje się wanna, wc, umywalka, glazura i terakota
- korytarz powierzchnia około 3,90m2, w korytarzu znajduje się duża zabudowana szafa
- salon powierzchnia około 9,40m2
- kuchnia powierzchnia około 8,10m2
- sypialnia powierzchnia około 13m2
Parking pod blokiem zawsze ma wolne miejsca, nie ma tu problemu z parkowaniem.
Niedaleko znajduje się też przystanek na którym zatrzymują się busy z/do Hrubieszowa.
W Nieledwi znajduje się Szkoła Podstawowa, Niepubliczny Zakład Opieki Zdrowotnej, Kosciół
najbliższy sklep spożywczy w odległości 150 metrów. Dużo zieleni, spokój i bliskość natury,
nieruchomość idealna zarówno dla młodej, rozwojowej rodziny lub emerytów.
Uwaga: oferta nie zawiera ceny ruchomości (meble, oświetlenie, sprzęt rtv i agd)
- do indywidualnego uzgodnienia z właścicielami.
Zapraszamy do obejrzenia i do zakupu. Prezentacja nieruchomości możliwa jest po uprzednim umówieniu telefonicznym
z naszym Biurem Nieruchomości: 606 261 421. Klient Kupujący nie płaci prowizji.
Pomagamy w procesie zakupu, współpracujemy z doradcami kredytowymi
Biuro Nieruchomości To jest To! w Hrubieszowie, telefon w sprawie oferty: 606 261 421.
Nota prawna
Opis oferty zawarty na stronie internetowej sporządzany jest na podstawie oględzin nieruchomości oraz informacji uzyskanych od właściciela, może podlegać aktualizacji i nie stanowi oferty określonej w art. 66 i następnych K.C.Szczegóły



