






































Opis nieruchomości
To jest To, Biuro Nieruchomości w Hrubieszowie oferuje na sprzedaż:DOM JEDNORODZINNY o powierzchni około 77 m2 na dwóch działkach o łącznej powierzchni 2952m2 oraz dodatkową działkę w pakiecie 1964m2. Dom nie wymaga wkładu finansowego, stan do zamieszkania.
Nieruchomość znajduje się w miejscowości Horodło, gmina Horodło, powiat Hrubieszów, woj. lubelskie.
Horodło: stara wieś o królewskim rodowodzie tu ciekawostka dla zainteresowanych:
https://lublin.eska.pl/ta-wies-w-woj-lubelskim-jest-nazywana-malym-gnieznem-legenda-mowi-ze-nikt-tu-nie-choruje
DZIAŁKA DOMU
dom jednorodzinny murowany posadowiony jest na dwóch działkach, 1652m2 + 1300m2 co łącznie daje powierzchnię 2952m2
+ działka (łąka) o powierzchni 1964m2 jako bonus
bardzo dobra klasa ziemi (I-IIR)
oprócz domu na działce znajduje się murowany budynek gospodarczy o powierzchni około 70 m2 w bardzo dobrym stanie, pokryty blachodachówką, orynnowany, do budynku doprowadzony jest prąd, woda, jest komin i kuchnia, budynek gospodarczy z garażem, miejscem na kuchnię letnią, warsztat
nieruchomość w części zagospodarowanej ogrodzona
działka duża, zadbana, przed domem ładna kompozycja z roślin ozdobnych i krzewów, trawnik prowadzący na część wewnętrzną posesji z licznym starodrzewiem, dalej sad w którym rosną stare odmiany jabłoni, grusza, czereśnia, wiśnia, jest miejsce na warzywniak, na grilla, na rozmaite aktywności, jest też miejsce na zbudowanie nowego domu (wg miejscowego planu zagospodarowania przestrzennego są to tereny zabudowy mieszkaniowej jednorodzinnej, zagrodowej i usług)
działka w części za domem ma nachylenie pod łagodnym kątem, od frontu działki do jej końca mamy około 137 metrów następnie zaczyna się łąka - pastwisko (działka w pakiecie sprzedawana z domem) o długości od początku do końca około 150 metrów prowadząca do doliny rzeki Bug
MEDIA:
ogrzewanie gazowe (zewnętrzny zbiornik naziemny, dzierżawa od firmy dystrybuującej paliwo gazowe)
woda: wodociąg lokalny, dodatkowo studnia głębinowa (rozprowadzenie wody za pomocą pompy ciśnieniowej)
szambo
światłowód w granicy działki
OPIS DOMU:
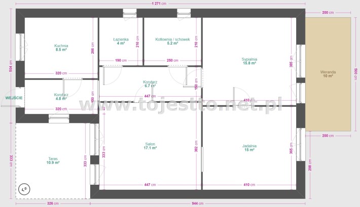
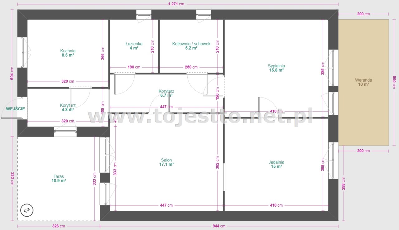
- powierzchnia około 77m2 (korytarz, kuchnia, łazienka, pomieszczenie gospodarcze, salon, jadalnia, sypialnia)
- dojazd do domu drogą asfaltową
- częściowo podpiwniczony (piwnica około 6m2)
- budynek ocieplony
- okna drewniane nowego typu (z 2005r.) w kolorze brązowym
- parapety z konglomeratu
- dach blachodachówka
- strop wylany, ocieplony wełną
- instalacja elektryczna na miedzi
- ściany: gładź lub glazura
- podłogi panele lub praktyczny gres
- nowoczesne kaloryfery panelowe
- dodatkowe źródło ciepła: kominek w salonie
korytarz pierwszy powierzchnia około 4,8m2, na podłodze gres, na ścianach gładzie, okno doświetlające wnętrze wychodzi na taras
kuchnia powierzchnia około 8,50m2, gres i glazura, jasna i ustawna kuchnia w zabudowie, oddzielna od reszty pomieszczeń
łazienka z wc powierzchnia około 4 m, glazura i terakota, obecnie w łazience znajdują się nowoczesna kabina prysznicowa, meble łazienkowe z umywalką, wc
korytarz drugi powierzchnia około 6,7m2, gres na podłodze
z korytarza wejście do pomieszczenia gospodarczego z piecem gazowym, powierzchnia pomieszczenia około 5,2m2, na podłodze gres,
znajduje się tu zejście do piwnicy oraz wejście na strych, pomieszczenie doświetlone dodatkowo przez znajdujące się tu okno
z korytarza wejście do salonu o powierzchni około 17,10m2 z eleganckim kominkiem oraz wyjściem na zadaszony duży taras o powierzchni 10,90m2 z pięknym widokiem na otaczającą przyrodę, stare dostojne drzewa
z salonu przejście do słonecznej jadalni o powierzchni około 15m2, ekspozycja okien na stronę południową
z jadalni możemy wejść do sypialni o powierzchni około 15,80m2, okna na stronę południową, wyjście z sypialni na werandę z widokiem na zadbany ogródek przed frontem domu
kolorystyka pomieszczeń w jasnych, neutralnych przyjemnych kolorach
Ta urocza nieruchomość położona jest w odległości około 17 km od miasta powiatowego Hrubieszowa
w miejscowości Horodło. W Horodle znajduje się Urząd Gminy, Szkoła Podstawowa, Liceum Ogólnokształcące, Niepubliczny Zakład Opieki Zdrowotnej, sklepy spożywcze to co na co dzień potrzebne do życia, oprócz walorów praktycznych jest to miejscowość ciekawa pod wzglądem walorów przyrodniczych i turystycznych. Na większe zakupy można pojechać do np. Hrubieszowa.
Zapraszamy do obejrzenia i zakupu nieruchomości. Kontakt w sprawie oferty 606 261 421.
Nota prawna
Opis oferty zawarty na stronie internetowej sporządzany jest na podstawie oględzin nieruchomości oraz informacji uzyskanych od właściciela, może podlegać aktualizacji i nie stanowi oferty określonej w art. 66 i następnych K.C.Szczegóły




